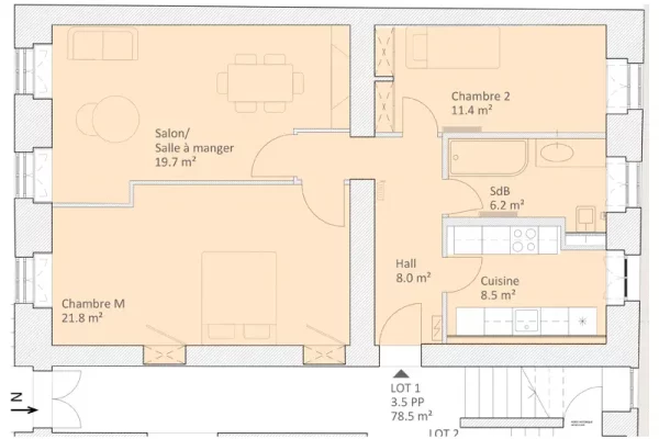
Un appartement lumineux orienté Sud de 3.5 pièces, situé au rez-de-chaussée, se constitue d’une entrée spacieuse et accueillante desservant une cuisine fermée, un salon/salle à manger ainsi que 2 grandes chambres et une salle de bain.
De plus, le bien dispose d’un accès direct à un agréable espace extérieur comprenant une terrasse côté cour et un jardin privatif d’environ 100m². Cet espace verdoyant constitue un véritable atout de ce logement, offrant luminosité et qualité de vie supplémentaire

