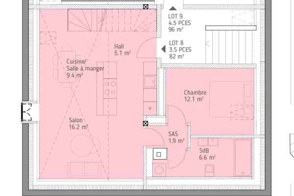
L’appartement de 3.5 pièces mansardé situé au 2ème étage bénéficie d’une organisation intérieure fluide et fonctionnelle.
Dès l’entrée, un hall spacieux dessert les différents espaces de vie. La cuisine avec salle à manger semi-ouverte et bien intégrée à un vaste salon lumineux, créant un ensemble convivial et harmonieux. L’unité propose également une chambre judicieusement positionnée ainsi qu’une salle de bain.
Situé sous les toits, ce logement séduit par ses volumes mansardés, ses poutres en bois apparentes et l’atmosphère chaleureuse qui s’en dégage. Ce cadre authentique et plein de charme confère à l’ensemble un caractère unique, à la fois intimiste et élégant.
Une grande mezzanine accessible depuis le séjour complète l’espace de manière raffinée. Elle peut être aménagée en bureau, coin lecture ou chambre d’appoint, tout en profitant du cachet de la charpente visible ainsi que du volume généreux sous toiture.
L’un des grands atouts de ce logement est son accès à l’extérieur, un jardin privatif de près de 150m², un espace verdoyant rare et idéal pour profiter des beaux jours en toute tranquillité.




