Lot 9

Un superbe appartement de 4.5 pièces mansardé composé de deux niveaux est situé au 2ème étage avec poutres apparentes et grands volumes. Il bénéficie d’une organisation intérieure fluide et fonctionnelle.

Appartement de 4.5 pièces au 2ème étage

L’appartement de 4.5 pièces mansardé composé de deux niveaux est situé au 2ème étage avec poutres apparentes et grands volumes. Il bénéficie d’une organisation intérieure fluide et fonctionnelle.

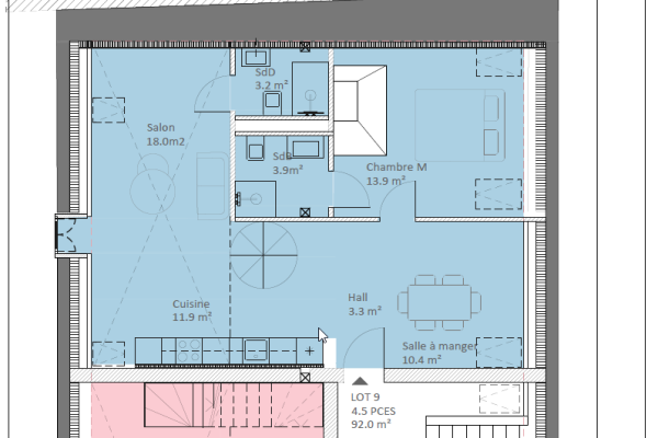
Dès l’entrée, un hall spacieux distribue les différents espaces de vie. La cuisine semi-ouverte s’intègre harmonieusement à la salle à manger et au salon lumineux, formant un ensemble convivial et accueillant. Une première chambre ainsi que deux salles d’eau (une salle de bain et une salle de douche) viennent compléter ce niveau principal.

Situé sous les toits, ce logement séduit par ses volumes mansardés, ses poutres en bois apparentes et l’atmosphère chaleureuse qui s’en dégage. Ce cadre authentique et plein de charme confère à l’ensemble un caractère unique, à la fois intimiste et élégant.

L’étage supérieur, accessible depuis le séjour, accueille une grande mezzanine ouverte ainsi qu’une chambre supplémentaire, offrant des possibilités d’aménagement variées. La mezzanine peut aisément faire office de bureau, de coin lecture ou de chambre d’appoint, tout en valorisant la belle hauteur sous plafond et le charme de la charpente visible.

L’un des grands atouts de ce logement est son accès à l’extérieur, un très grand jardin, un espace verdoyant rare et idéal pour profiter des beaux jours en toute tranquillité.

Place de parc comprise dans le prix

sur demande

Surface habitable

92 m²

Bains

2

Chambres

4.5

Découvrez la propriété en images

Plan

À la croisée de l’élégance patrimoniale et du savoir-faire architectural contemporain

Espaces de vie

  • Surface habitable 92m²
  • Surface terrain
  • Chambres 4.5
  • Salles de bain 2
  • Balcons

Caractéristiques & équipements

  • Année de construction du bien 1760
  • Renovation 2025
  • Appartement indépendant:
  • Terrasse avec tourelle
  • Places de parking

Adresse & atouts

  • Sous-sol avec caves voûtées 4.6m²
  • Transports 350 m
  • Commerces 70 m
  • Ecoles 900 m

Situation

Entre charme villageois et dynamisme régional, Echallens séduit par sa qualité de vie unique au cœur du Gros-de-Vaud.

Située à mi-chemin entre Lausanne et Yverdon-les-Bains, la commune d’Echallens nichée dans une région agricole réputée pour sa douceur de vivre et son patrimoine, allie le caractère d’un bourg historique à la praticité d’une petite ville en plein essor.

Elle offre un cadre de vie privilégié dans un environnement à la fois paisible, verdoyant et parfaitement desservi.

Estimez votre hypothèque en temps réel

Ajustez le montant de votre apport initial et visualisez immédiatement votre mensualité estimée. Cet outil vous offre une projection claire, avec des taux réels et transparents.

Partager cette page